The Gray Race
Cosio Valtellino (SO)
scroll down

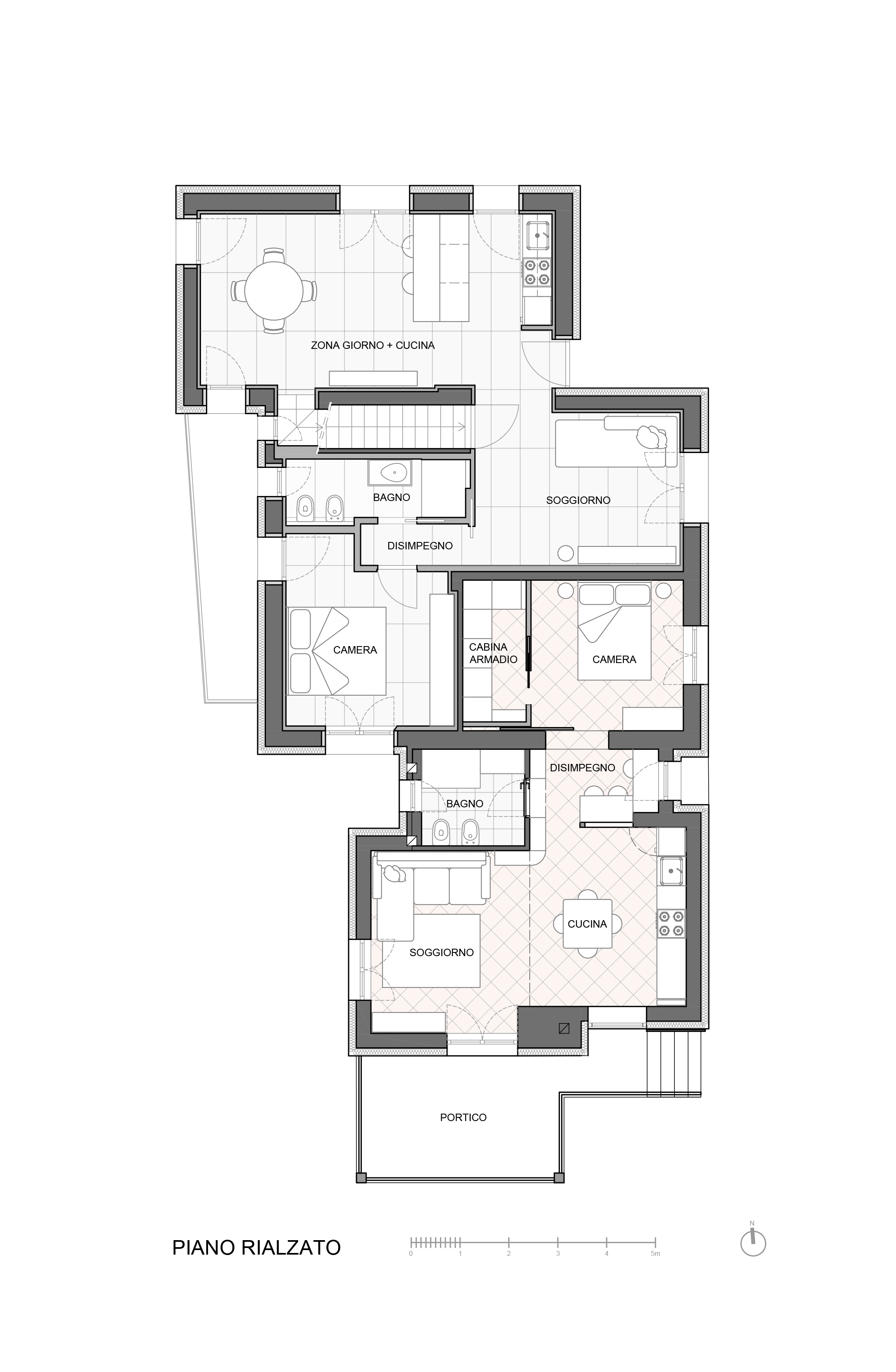
The Gray Race House nasce come risposta alla demolizione e ricostruzione, pratica che riduce la complessità dell’esistente a soluzioni standardizzate. Qui, al contrario, la scelta è stata quella di recuperare e trasformare, evitando sprechi e restituendo valore a una materia che chiedeva di essere ascoltata più che sostituita.

L' edificio anni 70, inizialmente fragile e totalmente inefficiente, è stato oggetto di una trasformazione profonda: un sopralzo con rifacimento della copertura, un isolamento accurato sia interno che esterno, una rimodellazione completa degli spazi interni e una particolare attenzione all’estetica complessiva. Il risultato non è la cancellazione di un passato scomodo, ma la sua evoluzione verso un presente più consapevole.

 

Fotografie: Marcello Mariana

 

Certificazione: Casaclima R

ANNO 2021-2024